H.J. Schimmelstraat 14

3532TC UTRECHT
Verkocht

Omschrijving

Authentiek wonen met volop mogelijkheden in hartje Utrecht

Welkom bij H.J. Schimmelstraat 14, een karaktervolle tussenwoning uit 1935, gelegen in een rustige straat in de gewilde wijk Lombok. Met een woonoppervlakte van 106 m², vier slaapkamers en een zonnige tuin op het zuidwesten biedt deze woning een uitstekende basis om naar eigen smaak te moderniseren en helemaal naar wens te maken.

Hier woon je sfeervol, rustig én op steenworp afstand van het bruisende stadsleven van Utrecht.

Sfeervol wonen met karakter
De woning ademt nog de charme van de jaren ’30, met hoge plafonds, een prettige lichtinval en een fijne indeling. De ruime woonkamer strekt zich uit over de gehele lengte van de woning, met aan de voorzijde een gezellig zitgedeelte en aan de achterzijde een eethoek met uitzicht op de tuin. Dankzij de grote ramen is de ruimte licht en uitnodigend.

De dichte keuken bevindt zich eveneens aan de tuinzijde en biedt toegang tot de zonnige achtertuin. Hoewel de woning netjes is onderhouden, biedt ze volop mogelijkheden om te moderniseren en naar eigen smaak af te werken – een ideale kans om hier jouw droomhuis van te maken.

Buiten genieten
De achtertuin van ca. 19 m² ligt op het zuidwesten, waardoor je hier heerlijk kunt genieten van de middag- en avondzon. De tuin beschikt over een achterom en een vrijstaande houten berging voor fietsen en extra opslag.

Indeling
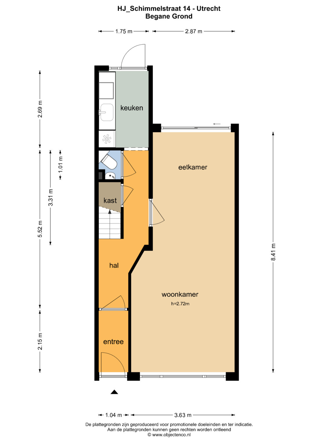
Begane grond
Entree met hal, toilet en trapopgang. Ruime woonkamer met zitgedeelte aan de voorzijde en eetgedeelte aan de achterzijde. Gesloten keuken met inbouwapparatuur en toegang tot de tuin.

Eerste verdieping
Ruime overloop met drie slaapkamers en een badkamer voorzien van ligbad, toilet en wastafel.

Tweede verdieping
Volwaardige zolderverdieping met één slaapkamer, perfect te gebruiken als logeer-, werk- of hobbykamer.

Locatie
De woning ligt in de geliefde wijk Lombok, op korte afstand van het centrum van Utrecht. In de directe omgeving vind je gezellige cafés, restaurants, buurtwinkels, supermarkten en scholen. Met het Centraal Station, het Griftpark en diverse uitvalswegen (A2 en A12) in de buurt, is de ligging ideaal voor wie centraal én comfortabel wil wonen.

Kenmerken
- Woonoppervlakte: 106 m²
- Bouwjaar: 1935
- Energielabel: C
- Vier slaapkamers
- Achtertuin op zuidwesten met berging en achterom

Zie jij de potentie van deze sfeervolle woning en wil jij hier jouw droomhuis van maken?
Maak dan snel een afspraak voor een bezichtiging en ontdek de mogelijkheden van de H.J. Schimmelstraat 14 in Utrecht!
Lees meer

Kenmerken

Overdracht

Aangeboden sinds
9 oktober 2025
Status
Verkocht
Aanvaarding
In overleg

Bouw

Soort woning
Woonhuis
Bouwjaar
1935
Soort dak
Zadeldak

Oppervlakten en inhoud

Oppervlakte wonen
106 m²
Oppervlakte gebouwgebonden buitenruimte
3 m²
Oppervlakte externe bergruimte
6 m²
Perceel
87 m²
Inhoud
399 m³

Indeling

Aantal kamers
5
Aantal slaapkamers
4
Aantal badkamers
1
Badkamervoorzieningen
Ligbad, toilet en wastafel
Aantal woonlagen
3 woonlagen
Voorzieningen
Natuurlijke ventilatie

Energie

Energielabel
C
Isolatie
Dakisolatie en dubbel glas
Verwarming
Cv-ketel
Warm water
Cv-ketel
Cv-ketel
Remeha bj (2014)

Buitenruimte

Ligging
Aan rustige weg en in woonwijk
Tuin
Achtertuin
Achtertuin
19 m² gelegen op het zuidwesten met achterom

Bergruimte

Schuur/berging
Vrijstaand hout

Garage

Soort garage
Geen garage

Foto's

Video's

360° foto's

Locatie

Ook jouw woning succesvol verkopen?

Neem dan contact op

Gratis waardebepaling